︎
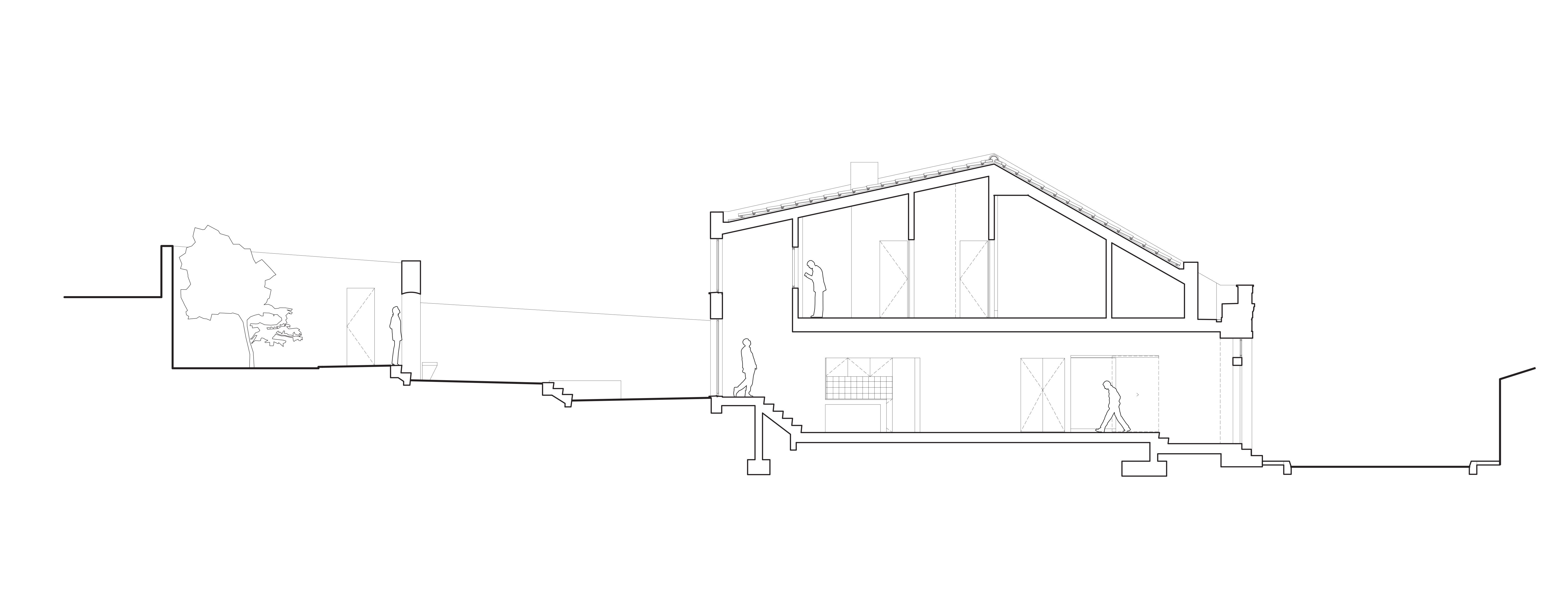
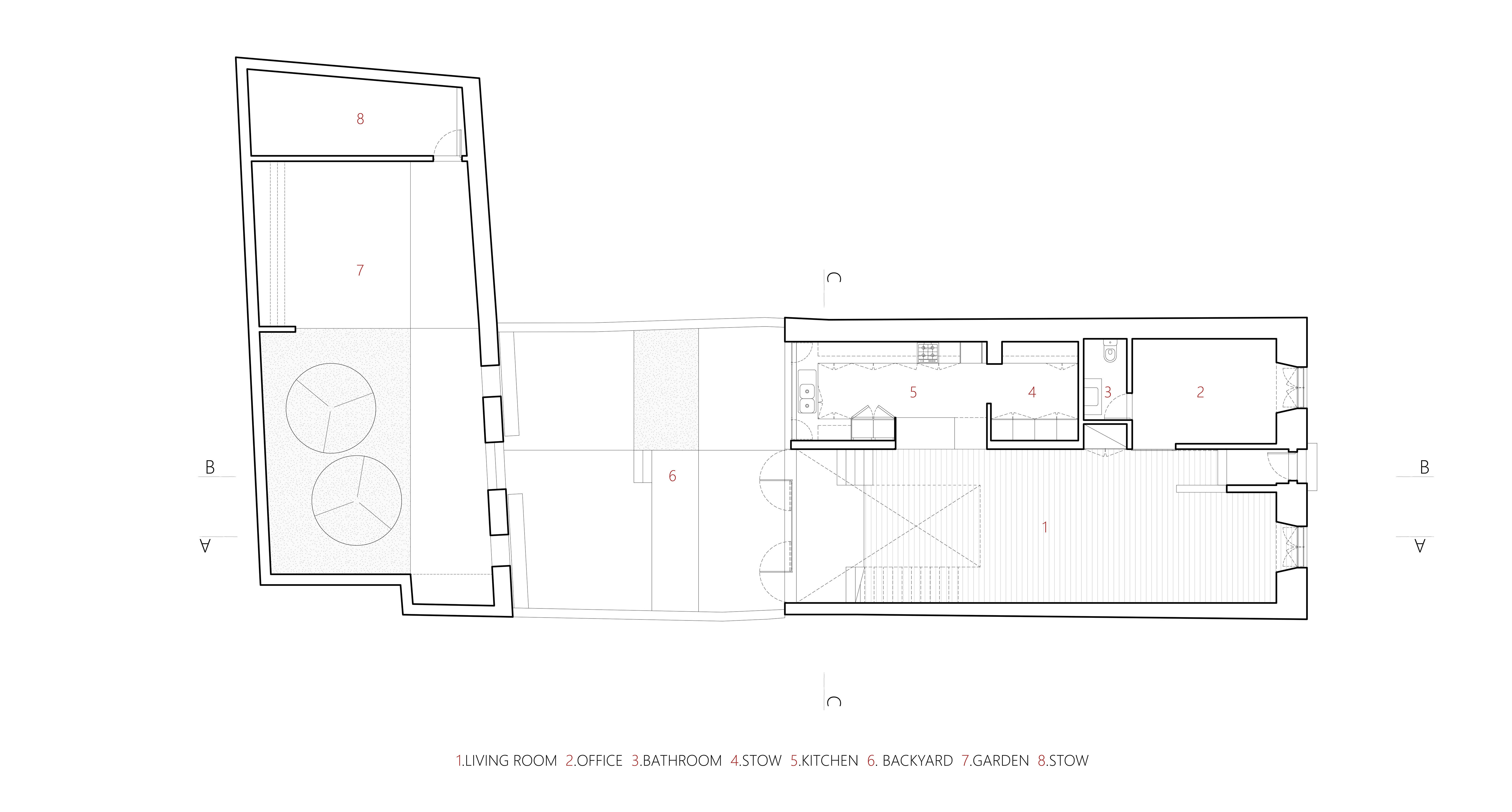
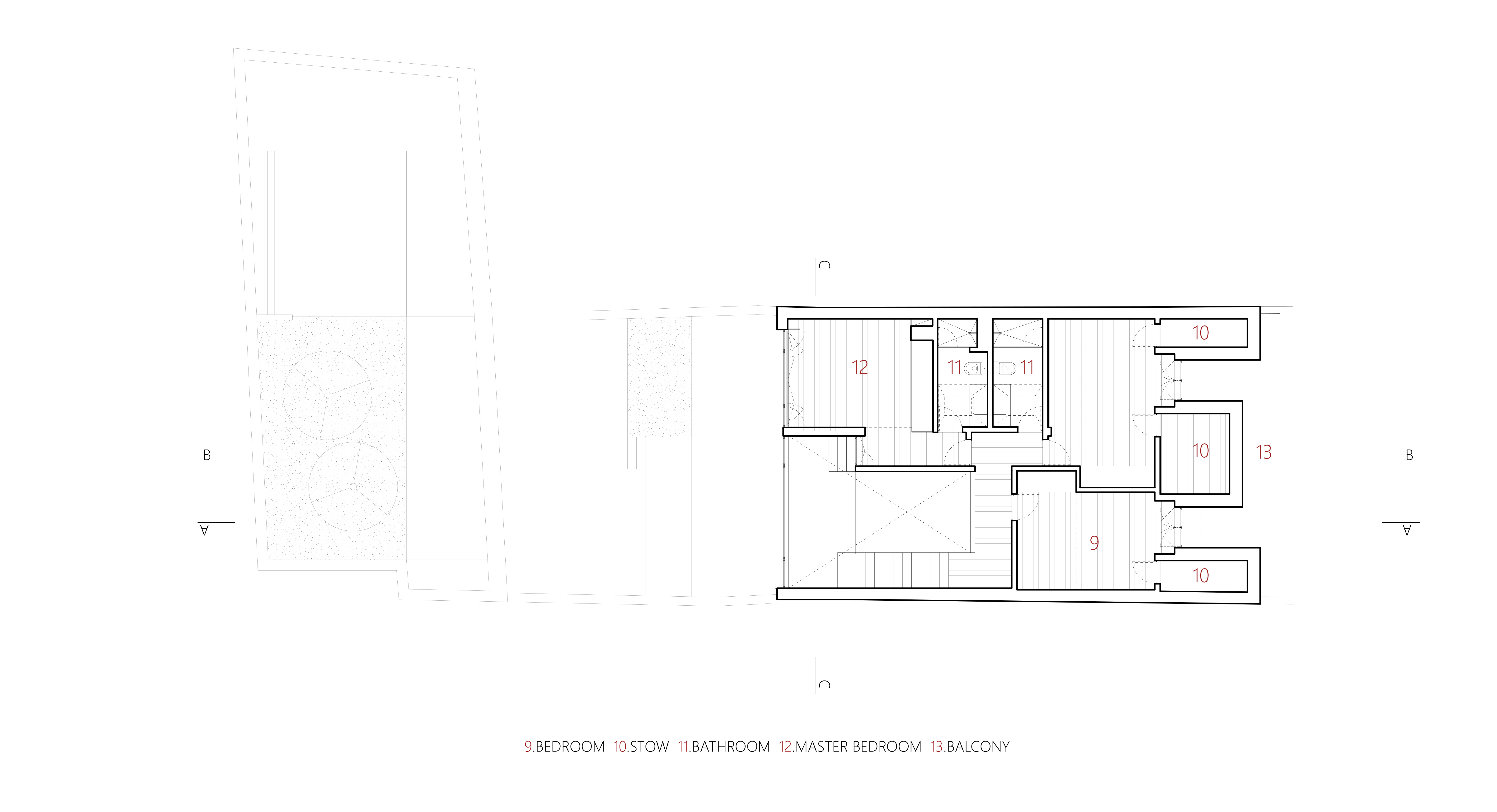
CASA TERRAS, LISBOA
reabilitação e ampliação
rehabilitation and expansion
cliente privado
private
client
construído 2015
built 2015
fotografia
photography
Francisco Nogueira
publicações
press
Archdail
y
Dezeen
P3
Divisare
Domus
Ignant
Index
Next︎
︎